Calle San Jaime, Pozuelo de Alarcón
Las dos viviendas unifamiliares pareadas en la calle San Jaime 14 de Pozuelo de Alarcón se proyectan en el solar que anteriormente ocupaba una única edificación. El proyecto plantea una intervención que unifica el lenguaje arquitectónico de ambas viviendas, pero que al mismo tiempo dota de singularidad a cada una de las piezas, ajustando la volumetría y la organización interior a las necesidades de programa y a la orientación de cada una.
El conjunto se caracteriza por la contundencia de los muros medianeros, tratados con piedra caliza abujardada y despiece vertical de junta cerrada, que refuerzan su condición de límites sólidos y expresivos. En contraste, las fachadas principales, tanto hacia la calle como hacia los jardines, así como los patios interiores, se revisten con la misma piedra, esta vez apomazada, de mayor formato y colocada en disposición horizontal con junta abierta, logrando una presencia más ligera y matizada.
Las cubiertas inclinadas de zinc, resueltas con junta alzada engatillada, aportan una silueta precisa y reconocible que se prolonga sobre las fachadas y terrazas, integrando el volumen en un único gesto arquitectónico. Las embocaduras de los huecos, ejecutadas en acero lacado al horno, subrayan con nitidez la geometría de los vanos, dotando al conjunto de un carácter contemporáneo y sobrio.
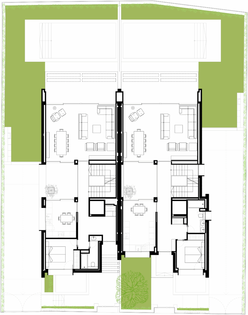
El esquema funcional responde a la tipología de casa patio, en torno a la cual se articulan los espacios interiores. Los patios, cuidadosamente situados, permiten la entrada de luz y la ventilación cruzada, al tiempo que generan situaciones intermedias entre lo público y lo privado. En la planta baja se desarrollan los usos más abiertos y sociales, potenciando la continuidad espacial entre cocina, patio, estar, jardín y piscina. La organización en planta primera acoge los dormitorios principales y estancias privadas, mientras que bajo cubierta se disponen espacios flexibles, aprovechando la volumetría inclinada del tejado. El sótano se reserva para garajes y dependencias de servicio, liberando la superficie principal para la vida cotidiana.
Las escaleras, concebidas como un elemento vertebrador, se resuelven con peldañeado macizo de roble aceitado y barandales de acero plegado con pasamanos del mismo material, iluminados cenitalmente mediante un lucernario que enfatiza la verticalidad. Esta pieza no solo articula los distintos niveles, sino que actúa como un espacio de referencia dentro de la vivienda, reforzando la claridad de la organización.
El resultado es un conjunto de viviendas de carácter compacto y unitario, en el que la precisión constructiva, el control material y la atención a los patios como articuladores espaciales configuran una arquitectura contenida y rotunda, concebida desde la sobriedad y la coherencia formal.






















